| Wohnen in romantisch grünem
Flair |
|
Der Stadtteil Weißer Hirsch mit seinen
zahlreichen Villen und parkähnlichen Wohnanlagen gehörte
seit jeher zu Dresdens gefragtesten Adressen. Die ruhige Lage,
saubere Luft und ein fantastischer Ausblick vom Elbhang über
die Stadt und das Erzgebirge wurden von der besseren Gesellschaft
sehr geschätzt.
Auf der Collenbuschstraße wohnt man trotz verkehrsgünstiger
Lage (Straßen- bahn, Bus, B6) ausgesprochen ruhig. Das
verschwenderische Grün der Alleen und des zum Haus gehörenden
Gartens schafft ein lauschiges und wohltuendes Ambiente.
Die Collenbuschstraße 23 und das angrenzende Haus Lahmannring
10c sind fast baugleich und bilden eine Wohnanlage mit insgesamt
16 Wohnungen, Tiefgarage und gepflegtem Gartenareal. Die Tiefgarage
befindet sich zwischen den Häusern und ist somit von
beiden Seiten direkt erreichbar.
Alle Wohnungen bestechen durch hochwertiges Parkett und anspruchsvolle
Sanitärausstattung. Die 1997 neu errichtete Anlage befindet
sich in sehr gepflegtem Zustand.
|
|
|
 |
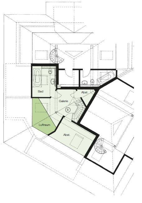
Wohnung
Nr. 8,
Dachgeschoss
3-Zimmer-Wohnung, 78,89 m²
mit Balkon
hochwertige Stiltüren, Parkett
Naturstein im Bad
|
|
|
Wohnung
Nr. 10
2-Zimmer-Wohnung, 49,56 m²
sehr schöne Einbauküche
Parkett, Terrasse
|
|

Wohnung Nr. 8 (oberer Stock) |
|
|
|
|
|