Wohnen in idyllisch grüner Lage

Der Stadtteil Blasewitz mit seiner Elbnähe und den vielen Villen mit parkähnlichen Gärten gehört zu Dresdens besten Wohnlagen. Die Ruhe, das verschwenderische Grün, die nostalgischen Gaslaternen auf den Straßen und die nahen Elbwiesen mit dem fantastischen Blick auf die Elbhangschlösser verleihen Blasewitz seinen einmaligen Charme.

In der Prellerstraße wohnt man trotz verkehrsgünstiger Lage (Straßenbahn, Bus) ausgesprochen ruhig. Der zum Haus ge- hörende Garten mit kleinem Spielplatz schafft ein lauschiges und wohltuendes Ambiente und steigert die Wohnqualität der 1996 neu errichteten Wohnanlage.

Die 12 Wohnungen selbst haben einen überdurchschnittlich hohen Ausstattungskomfort. Die Tiefgarage ist direkt von beiden Häusern erreichbar.

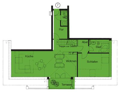
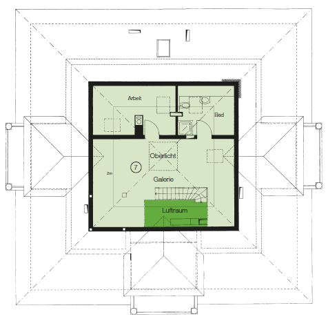
Wohnung Nr. 7,
Dachgeschoss


• 4-Maisonette-Wohnung, 119,60 m²
• mit hochwertigem Parkett und Stiltüren
• südseitiger Balkon und große Lichtkuppel
Badausstattung in Carrara-Marmor
und Formwanne